看起来你提供的内容主要是与钢筋工具相关的改进和修复事项,可能涉及某个软件或系统的更新日志或功能说明。这些内容非常详细,涵盖了从文字输入、表格编辑到计算功能等多个方面的改进。
以下是一些主要内容的总结:
1. 文字工具改进
- 解决了曲排文字时捕捉圆弧端点的问题。
- 修改了钢筋直径转换为间距的描述。
- 修复了查找替换中无法选取多行文本(MTEXT)的问题。
2. 钢筋工具优化
- 箍筋试算功能支持二级和三级钢筋使用直径6进行计算,并增加了提示信息。
- 圆角箍筋绘制时可辅助使用正交功能。
- 异型箍筋绘制问题得到修复,自定义多边形不再出现错误。
3. 构件功能改进
- 墙柱和框架柱的体积配箍率计算规则统一改为“中到中”计算。
- 修改了锚筋和栓焊节点的验算参数及默认值。
4. 计算功能优化
- 修复了板式楼梯配筋数据无效的问题,并修改了相关钢筋等级的一致性。
- 荷载工况库删除某工况后,组合列表联动更新问题已解决。
- 修改了梁栓焊刚接节点的螺栓承担剪力计算逻辑。
5. 其他工具改进
- 批注功能增加了所属类别和图号下拉选项,方便输出校审单。
- 表格编辑修复了行高和列宽自动修改的问题。
- 常用符号绘制问题得到优化,如埋件预览显示正常。
6. 计算书格式与输出
- 修改了计算书的格式,并增加了对科学计数法的支持。
- 修复了板式楼梯、桩基承台等计算中的错误。
如果你有具体的问题或需要进一步了解某个功能,请提供更多细节,我会尽力解答!
探索者CAD是一款非常出色的CAD工具,可以帮助用户轻松完成各种复杂的图纸绘制任务。在安装后该工具会内嵌在CAD软件当中,可以直接调用大量的功能,用起来非常顺手。用户既可以在菜单栏中使用这些功能,也可以调出工具栏面板来更快地使用。它为建筑领域提供了便捷的绘图功能,可以快速地画出各种物体的图纸,还能够选择产品的型号,而且支持丰富的参数调整,可以完全定制化绘制。除了绘图之外,它还有超实用的单位换算以及校对功能,让我们可以快速地发现图纸中的错误并通过智能化的修改工具来进行调整。此外更有图纸对比的功能,用户能够在软件中将两个图纸进行对比来观察不同之处。

软件特色
1、专业化的多比例绘图功能。可实现比例变换时,尺寸自动换算,标注自动调整等,并带有比例变换、图形切割等快速调整图形比例的工具。
2、图纸批注功能。可以方便的帮助审图人员实现对图纸的快速批注,将批注内容形成word版的审查意见书。
3、强大的梁图校对功能。可以实现用户自己绘制的梁图与计算结果文件进行自动对比,查找不满足规范构造要求以及计算配筋的地方,进行批注,提醒工程师进行修改,大幅降低图纸错误率,减轻审图人员的压力,提高设计院的绘图水平。
4、强大的文字符号输入及排版功能。可实现附注、设计说明等的快速排版,查找替换,消重字等,可在Office及QQ中直接输入各种钢筋、型钢等特殊符号。
5、完备的钢筋工具。有一套功能完善、使用方便的钢筋绘制和编辑工具。可以使用软件提供的专业化绘制、修改编辑命令快速完成所需工作。提供的钢筋工具可以绘制包含结构专业几乎全部类型的钢筋形式。
6、实现了与办公软件互导。可将world中的文字,excel表格直接导入到CAD中,也可反向导出,并给出快速编辑修改功能,具有在CAD中直接进行数据相加及相乘的功能。
7、对图中的组、块、外部参照的快速编辑。通过组的开关实现多构件同步操作,块编辑命令直接对块及外部参照进行编辑,避免重复炸开。
8、图形的对比功能。用户可以快速的找到两个平面图的不同,比较完成之后还可以帮助用户进行左右同步。
9、内置规范,为工程师提供安全保障。提供常用规范查询、在参数化绘图中输入数据的时候在程序内部进行规范检查、构件计算模块内部对输入的荷载和几何参数进行数检,对计算结果按照规范要求进行检查等一些必要的安全保障都在TSSD系列软件中充分实现。
10、先进的图库管理系统。可以在设计中随时按所需分类方式管理自己的图形资源,也可以将以往积累的图形快速导入图库中。
11、图纸目录自动生成。方便地进行整套设计图纸归档,并且还可以和具体图形文件进行联动修改。

软件亮点
1.新接口快捷转图
一键将PKPM、YJK等软件生成的施工图转化成符合设计院绘图标准的图纸。
2.参数标准化绘图
支持参数化绘制平面图、立面图、节点图。
3.人性化图库管理系统
软件提供各种常用大样、节点、详图,并支持用户自定义添加。
4.无缝对接办公软件
可以读取Word文档在DWG图中转换成图纸说明,支持DWG图中表格与Excel表内容互导。
5.便捷式节点边算边画
支持混凝土构件节点计算并出图。
软件功能
1、平面
主要功能是画结构平面布置图,其中有梁、柱、墙、基础的平面布置,大型集成类工具板设计,与其它结构类软件图形的接口。平面布置图不但可以绘制,更可以方便的编辑修改。每种构件均配有复制、移动、修改、删除的功能。
这些功能不是简单的CAD功能,而是再深入开发的专项功能。与其它结构类软件图形的接口主要有天正建筑(天正7以下的所有版本)、PKPM系列施工图、广厦CAD,转化完成的图形可以使用TSSD的所有工具再编辑。
2、构件
主要功能是结构中常用构件的详图绘制,有梁、柱、墙、楼梯、雨蓬阳台、承台、基础。只要输入几个参数,就可以轻松的完成各详图节点的绘制。
3、计算
主要功能是结构中常用构件的边算边画,既可以整个工程系统进行计算,也可以分别计算。可以计算的构件主要有板、梁、柱、基础、承台、楼梯等等,这些计算均可以实现透明计算过程,生成WORD计算书。
4、工具
主要是结构绘图中常用的图面标注编辑工具,包括:尺寸、文字、钢筋、表格、符号、比例变换、参照助手、图形比对等等共有200多个工具,襄括了所有在图中可能遇到的问题解决方案,可以大幅度提高工程师的绘图速度。
怎么改尺寸标注字体大小
在CAD的绘制过程中我们是需要对图纸的各个地方进行标注,这时候就需要用到文本来了,但文字的样式、颜色、大小等属性也都会对图纸的观感造成很大的影响,而其中最重要的就是大小了,要与图纸相匹配才能获得更好的浏览体验,下面就来看看如何修改字体大小吧。
1、首先我们打开我们要修改尺寸标注字体大小的图纸,小编就以自己的图纸为例子,大家看到下图就可以知道尺寸标注的字体很小,然后我们就把它放大。

2、在软件右边有一个菜单选项(根据软件版本不同,可能位置也有所差异),然后我们点击第一个“初始设置”如下图所示。

3、点进“初始设置”进入设置页面以后,然后我们点击左边的“尺寸标注”选项如下图所示。

4、点击“尺寸标注”以后,在右边的设置页面就可以看到有一个“字体高度”的设置,如下图所示。

5、然后我们点击字体高度,选择要设置的字体高度即可,当然也可以自己手动输入。

6、字体的高度设置完成以后,不要忘了点击设置页面下方的“确认”按钮,如下图所示,点击确认按钮以后就设置成功了。

7、设置完成以后大家就可以看到字体的大小已经改变了,如小编的例子效果图,如下图。当然这个办法同样也可以把字体的大小改小,方法上同。

怎么画配筋图
配筋图的绘制是有技巧的,而通过探索者CAD中的辅助功能,我们可以很轻松地进行绘制,一起看看如何操作吧。
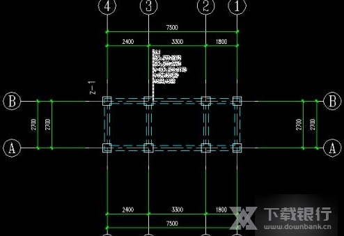
1、打开探索者软件tssd模块。
2、首先熟悉一下探索者的主要功能,首先点击轴网布置——矩形轴网。

3、然后进行梁和柱子的布置。

4、经过大家的手算利用平法标注标注出梁的配筋,直接按照格式进行输入即可。

5、当然也要把柱子的标号标注出来,暂且命名为Z-1。

6、好了,一张简单的施工图就完成了,大家再进行格式调整就可以了。

更新内容
1.1.支持AutoCAD2020平台;
1.2.更新菜单图标,并支持工具栏大图标显示;
1.3.解决在tssd下,进行复制粘贴操作时没有走ucs坐标系的问题;
1.4.tssd中取消对cad自动保存的设置,按cad的默认设置;
1.5.修改tssd安装到win10系统的目录c:program files下,不能写文件的问题;
1.6 解决win10家庭版部分用户安装不了tssd的问题;
1.7.平法拖动:修改当正交打开时,拖动存在问题的情况;
1.8.初始设置里的实时显示钢筋和文字里的实时钢筋查询:兼容对箍筋间距符号-的支持;
1.9.初始设置--钢--板负筋绘图设置:增加 1/3净跨长和1/4净跨长两个选项;
1.10.图形接口-转PM基础图:修改转图后少了尺寸标注的问题;
1.11.平面—柱—柱尺寸标注:去掉命令行里显示的多余调试信息;
1.12.平面—柱—构造柱:删除柱子、柱尺寸标注、多柱标注、移动柱子、柱填实、柱空心、柱原位放大、柱编辑等柱子编辑功能,增加对构造柱的支持;
1.13.平面—柱—布构造柱:当有旋转角度,进行随轴旋转绘制时,解决了绘制结果中旋转角度错误的问题;
1.14.平面-柱—布构造柱:解决设置偏移量为负值时总弹提示框的问题;
1.15.平面-剪力墙—墙上开洞:修改 勾选“洞口处绘制连梁”选项的情况下,不能编辑洞口名称的问题;
1.16.平面-剪力墙—墙线加粗:修改命令行选项不能点选的问题;
1.17.平面-剪力墙—墙线填充:框选多个墙体填充时,改为独立填充;
1.18.平面—剪力墙:增加墙交线处理功能;
1.19.平面--梁--连续标梁:修改识别的梁跨不正确的问题;
1.20.平面—墙与梁线的交线处理 :处理砖墙与主次梁相交的情况按照砖墙的优先级最低来处理;
1.21.平面轴网—绘制圆弧轴网:解决当绘制的圆周大于180度时,轴网标注的方向不对的问题;
1.22.平面--轴网--绘中轴线:修改对话框界面上的文字描述(将最小梁宽和最大梁宽 改为 最小梁墙宽和最大梁墙宽);
1.23.文字—多行输入:解决对话框最大化时,“设置行号”按钮位置不对的问题;以及文字样式设置项的页面布局太远的问题;
1.24.文字--文字输入:描述"@/-按初设转换为钢筋直径"修改为"@/-按初设转换为钢筋间距";
1.25.文字—查找替换:修改不能选取mtext文字的问题;
1.26.文字—查找替换:对话框中的符号按钮调出的对话框中,补充了高强筋符号;
1.27.文字—实时查询:执行命令过程中在命令行中的钢筋等级提示增加了表示高强筋的字母;
1.28.文字_替换钢筋直径:双排变单排的功能选项暂时先去掉;
1.29.文字工具—曲排文字:解决曲排文字时,当捕捉到圆弧端点报错的问题;
1.30.钢筋工具—箍筋试算2:二级和三级钢筋,也可以选用直径6的进行计算;当计算后没有匹配到钢筋的话增加了提示信息;
1.31.钢筋工具—圆钩断点和斜钩断点:修改命令行提示语,表述更明确;
1.32.钢筋工具—墙钢筋线端头:选中钢筋线时增加亮显状态;
1.33.钢筋工具—删弯钩:调整对话框布局;
1.34.钢筋工具--箍筋试算2:将返回值那里的书写格式也改成正确的书写格式;
1.35.钢筋—圆角箍筋:绘制时可以使用cad的正交功能辅助绘制;
1.36.钢筋—画点钢筋:弧线布置时支持顺时针绘制;
1.37.钢筋—多跨负筋和自动负筋:自动绘制的钢筋长度考虑了板的双方向。取决于初始设置中“板负筋绘制设置”选项的设置;
1.38.钢筋--异型箍筋:解决自定义箍筋绘制时,绘制多边形出现错误的问题;
1.39.钢筋—附加吊筋:修正 输入放大系数后吊筋位置跑偏的问题;
1.40.实体工具-虚实变换:解决此命令不能对墙线进行虚实变换的问题;
1.41.实体工具--删除PL无效顶点:优化对于重合点的设计算法;
1.42.实体工具--标形心:解决带圆弧的不规则图形的形心标记错误的问题;
1.43.其他工具—文档对比:修正对话框中对参与比较的两个文档的描述;
1.44.其他工具—房间镜像:在勾选复制建筑条件图的情况下,解决了镜像后平法标注的图层被后置的问题;
1.45.柱形心(平面-基础-柱形心标记 和 实体工具—标形心):绘制柱形心支持叉的形状;
1.46.工具—批注—输出批注:解决选择cad表格,确定后程序不响应的问题;
1.47.工具—批注—绘制批注:在输入批注的对话框内加两个下拉选项:所属类别和图号,方便输出批注后可以直接当做校审单来用;
1.48.标面积:将此命令添加到了右键菜单中;
1.49.标面积:通过绘制图形的方法标面积可以支持圆弧;
1.50.快捷工具条上绘图状态,设置为楼梯平面图:解决了绘制的尺寸标注图层不是楼梯标注图层的问题;
1.51.表格—文字前缀和文字后缀:支持选中则亮显的操作;
1.52.表格—编辑表格:解决编辑表格后会自动将行高和列宽的值修改的问题;
1.53.常用符号—埋件绘制:解决对话框中预览图不显示的问题;
1.54.常用符号-坡度符号:修改第一次绘制特别小再次绘制比例正常的问题;
2.构件功能:
2.1.墙柱体积配箍率修改箍筋长度计算规则,统一改为中到中计算;
2.2.框架柱体积配箍率修改箍筋长度计算规则,统一改为中到中计算;
3.计算1功能:
3.1.板式楼梯支座筋面积取值控件逻辑及计算书相关内容修改;
3.2.板式楼梯支座筋面积实配结果相关控件逻辑及默认值修改;
3.3.板式楼梯绘图预览界面4号钢筋应与基本参数设置界面钢筋等级一致;
3.4.梁式楼梯绘图默认参数修改;
3.5.预埋件计算修改;
3.6.钢材强度修改;
3.7.角钢锚筋计算增加材料控件并修改受剪承载力计算;
3.8.角钢直锚筋加锚板受剪承载力计算修改;
3.9.桩基承台计算修改;
3.10.板式楼梯最小配筋率限值修改;
3.13.板式楼梯配筋计算修改;
3.12.修改直锚筋无端板计算结果与计算书矛盾问题;
3.13.直锚筋无端板锚板弯曲变形折减系数ΑB修改;
3.14.板式楼梯计算中用户修改配筋数据无效;
3.15.计算书格式修改;
3.16.楼板钢筋最小值修改;
3.17.修复板式楼梯计算4,5号钢筋有误问题;
3.18.锥形基础示意图位置修改;
3.19.桩基承台2桩时增加上部钢筋直径CombBox控件及默认直径修改;
3.20.单桩水平承载力计算结果改用科学计数法表示;
3.21.桩基承台2桩时增加上部钢筋直径CombBox控件及默认直径修改;
3.22.单桩水平承载力计算结果改用科学计数法表示;
4.计算2功能:
4.1.DXF文件导出字体、标注格式修改;
4.2.增加可变荷载调整系数;
4.3.增加埋入式柱脚U形筋设计;
4.4.修改工字型钢骨混凝土梁计算;
4.5.增加圆管截面拉弯压弯计算;
4.6.铰接节点增加考虑抗震工况;
4.7.修改荷载工况库删除某工况后工况组合列表未联动更新问题;
4.8.梁梁栓焊、全螺栓刚接节点取消连接板附加焊缝与螺栓群共同受力计算;
4.9.修改材料库混凝土材料类型COMBOX默认为空问题;
4.10.修改杆件荷载库为空时编辑荷载死机问题;
4.1修改地基资料库删除上海市一般地基后续操作死机问题;
4.12.取消钢节点与砼连接节点H形梁栓焊、全焊刚接界面节点极限承载力抗震验算CHECK项;
4.13.修改钢节点梁腹板螺栓群验算条目净截面抗剪承载力计算参数取值有误问题;
4.14.修改梁梁栓焊刚接节点计算结果列表螺栓承担剪力未取验算条目中计算结果问题;
4.15.梁柱节点H形强轴悬臂段螺栓刚接梁梁节点内力默认等强内力;
4.16.梁柱节点悬臂段刚接梁梁节点内力COMBOX灰显不可编辑及计算书内力信息修改;
4.17.修改地震库显示格式;
4.18.修改屋面支撑、柱间支撑计算荷载分项系数;
4.19.修改门刚节点详图导出DXF格式文件多出异常标注问题;
4.20.修改截面库热轧窄翼缘H型钢截面型号数据错误;
4.21.修改与砼连接任意梁全焊刚接节、门刚节点梁端截面角焊缝强度验算有误问题;
4.22.修改全焊刚接节点梁与连接板角焊缝强度验算参数名下标;




























共有 0条评论